Kétszintes minimálstílus lapostető

Alap műszaki tartalom szerint:

Hidegburkolatok: akár 8000 Ft/nm-től (Konyha, fürdőszoba) – választható

Melegburkolatok: akár 8000 Ft/nm-től (Szobák,előszoba) – választható

Homlokzati nyílászárók: Kívül-belül fehér, bukó-nyíló, 3 rétegű hőszigetelt műanyag nyílászárók

Bejárati ajtó: 250.000 Ft-ig választható

Szaniterek: akár 1.000.000 Ft-ig választható

Falszínek: Fehér vagy pasztell szín kívül-belül szabadon választható

Legrand vagy Schneider villanykapcsolók és konnektorok: választható elrendezésben megadott mennyiségben

Riasztó, internet és tv-kábelezés

Eltérő igények esetén az árkülönbözetet kell megfizetni.

Alap adatok

Könnyűszerkezetes

  • Fűtéskész ár:
  • Kulcsrakész ár:

Tégla

  • Fűtéskész ár:
  • Kulcsrakész ár:
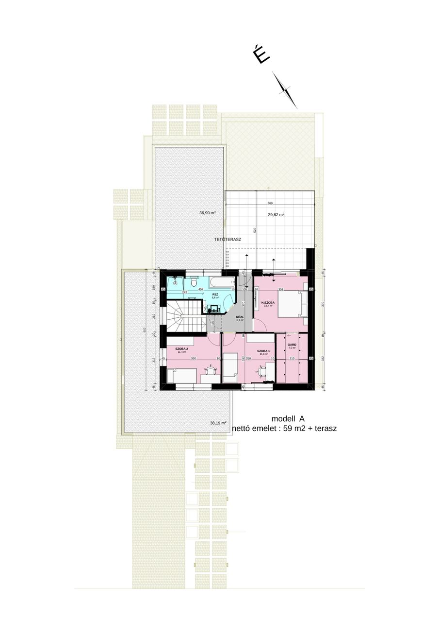
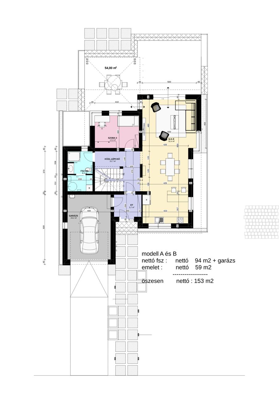
  • Szobák száma:
    Nappali + 4 szoba + gardrób
  • Hasznos alapterület:
    153 m2 + 24,2m2 garázs + teraszok
  • Technológia:
    Tégla vagy Könnyűszerkezetes
  • Építési idő:
    6-12 hónap

2024-ben szerződött ügyfeleknek garantált 6 hónapos határidővel kulcsrakész állapotig könnyűszerkezetes ház esetén!

Téglaház esetén a vállalási idő 12 hónap!

Terveztesse meg velünk otthonát!

2024-ben még díjmentes tanácsadás és koncepciótervezés! 

NewHomeHungary - Molnár-Szabó Gábor
Érdekel ez a ház!

Molnár-Szabó Gábor

+36 70 411 Felfedés

Választható műszaki tartalmak:

  Könnyűszerkezetes vagy Tégla
Alapozás Gépi földmunka
Lézeres kitűzés
Vasalt beton sávalap
1 sor zsalukő lábazat
Falazat és koszorú Választott technológia szerint, tégla vagy faszerkezet
Hőszigetelések 5-10 cm XPS szigetelés a lábazaton
10-15 cm EPS vagy kőzetgyapot szigetelés a homlokzaton
XPS szigetelés a vasbeton koszorún és a nyílászáróknál
25 cm gyapot vagy cellulóz befúj szigetelés a födémen
10 cm EPS szigetelés az aljzatban
Vízszigetelések GV-45 nehézlemez
Aljzat réteg rend 6-8 cm esztrich-beton, aljzatkiegyenlítés
Födém  Fafödém
Tetőszerkezet Szeglemezes rácsos tartós vagy hagyományos ácsolt tetőszerkezet
Tetőfedés 30x50-es ellenlécen páraáteresztő fólia, rajta 30x50-es cseréplécezés
Bramac vagy Terran betoncserép választható alapszínekből
Bádogozás Horganyzott ereszcsatornák
Víz-és szennyvízvezeték Házon belüli lefolyók PVC cső és idomok
Közműbekötés a közműfaltól 5 méterig az alapárban
Nyílászárók Hőszigetelt 3 rétegű kiváló minőségű fehér műanyag nyílászárók, bukó-nyíló szerkezettel
Bejárati ajtó 1 db 250.000 Ft-ig
Beltéri CPL ajtók 80.000 Ft-ig
Műanyag párkányok
Burkolatok Hideg- és melegburkolatok akár 8000 Ft/nm-től választhatók, fürdőszobában, vizes helyiségekben 2,10 magasságig
Laminált parketta szobákban, előszobában, nappaliban
Fűtésrendszer Egyedi megállapodás alapján
-Elektromos fűtésrendszer
-Gázkazános padlófűtés
-Hőszivattyús padlófűtés
Villanyszerelés Teljes elektromos kábelezés tervek alapján, gyengeáramú rendszerek előkészítése (internet, telefon, riasztó)
Festés, glettelés, felületképzés Fehér kétrétegű festés belül kétszeri gletteléssel
Kívül pasztellszínű nemesvakolat homlokzaton és lábazaton
  • A projektházak költséghatékony kialakításúak, jellemzően kedvezőbb áron elérhetőek, mint a konkurenciánál. Minden épületnek egyedi ára van.
  • Az alapozásnak mindig terep-és talajviszonyoktól függő egyedi ára lehet. A kalkulációban sík tereppel, ideális talajviszonyokkal számoltunk.
  • A válaszfalak elhelyezései igény szerint felár nélkül módosíthatók.
  • Házainkhoz lehetőség van más fűtési rendszereket, más technológiai megoldásokat is kérni.
  • Igény esetén passzívház minőségben is építünk.
  • Házainkhoz kérhető hővisszanyerős gépi szellőztető-rendszer.
  • A projektházak árait minden esetben a lent részletezett alap műszaki tartalommal számoljuk.
  • Projektházak esetén szerződéskötéskor 10% fizetendő.
  • Projektházaink esetén az elfogadott tervdokumentáció jogerőre emelkedése után azonnal meg tudjuk kezdeni a kivitelezést, várakozás nélkül. 
  • A kiválasztott technológiától függően a kulcsrakész kivitelezés időtartama 6 hónapon belül.